Bilgi
Dahil Olan Hizmetler
- 50 cm kalınlığında zemin betonu
- 4 cm kalınlığında zemin şapı
- İç ve dış duvar et kalınlığı 1.2 mm
- Çatı Makas et kalınlığı 1.2 mm
- Tavan Çelik et kalınlığı 0.8 mm
- Çatı makas üzeri 11 mm kalınlığında osb üzeri nem bariyeri en üste galvanizli kiremit desenli sac uygulanacaktır.
- Çatı altı tavana 10 cm kalınlığında taş yünü serilecek
- İç – Dış duvarlarda 10 cm kalınlığında taş yünü
- Dış duvarların bitiş kalınlığı 21 cm dir (Dış duvarın her iki yüzeyine osb uygulanacaktır. Ardından iç kısımda kalan yüzüne alçıpan, dış kısımda kalan yüzüne osb üzeri nem bariyeri + Boardex ve dekoratif sıva yapılacaktır.)
- İç duvarların bitiş kalınlığı 21 cm dir. İç duvarın her iki yüzüne önce osb ardından alçıpan uygulandıktan sonra alçı sıva ve boya işleri yapılacaktır.
- Elektrik tesisatı malzeme ve işçilikleri (tüm kablolar Halojen free, anahtarlar viko,sigortalar Siemens marka olacaktır.)
- Armatürlerin takılması (priz, anahtar, spot ve aplikler)
- Klima tesisatı
- Temiz su tesisatı
- Pis su tesisatı
- 8 mm Çamsan veya Floorpan marka parke (müşteri ile seçilecektir).
- Çanakkale veya Seramiksan marka seramik (müşteri ile seçilecektir).
- Banyo dolabı lake kapak gövde mdflam (müşteri ile seçilecektir).
- Mutfak dolabı gövde mdflam, kapaklar high gloss (müşteri ölçülerine özel çizilip, müşteri onayı sonrasında üretime alınacaktır).
- Vitrifiyeler (klozet, lavabo, bataryalar) (klozet iç aksesuarları vitra marka olacaktır).
- Tüm bataryalarımız 5 yıl garantili tamamı pirinç malzemeden olan ürünler müşteri ile birlikte seçilecektir).
- İç kapılar Lake kapı (müşteri ile seçilecektir).
- Dış Kapı Çelik kapı
- Doğramalar Pimapen 7000 serisi 4+16+4 Çift ısıcam (rengine müşteri karar verecektir).
- Tüm Sıva Boya işçilikleri
- İşçi, yol, yemek, konaklama ve nakliye hizmetleri
- Vinç ve iskele temini
Harici Hizmetler
- Belediyeden farklı bir zemin betonu talebi olması halinde bu durum üzerine tekrar fiyatlandırılıp ona göre ilave ücret alınacaktır.
- Binanın kurulması için gerekli plan, proje ve yasal izinlerin alınması.
- Bilgisayar ve UPS tesisatlarının çekilmesi ve armatürlerinin takılması
- Elektrik ana dağıtım panosu (Elektrik sayacı, kofra, ana sigortalar vs) ve topraklama hattı
- Montaj esnasında kullanılacak elektrik temini
- Çelik yapı malzemelerinin şantiyede çalınmaya karşı güvenliğinin sağlanması,
- Isıtma ve soğutma
- Merdiven korkuluk ve kaplama
- Veranda ve balkon korkulukları tesisatları (Kalorifer)
Adres
- Şehir: Bayrampaşa
- Bölge: İstanbul
- Mahalle: Merkez Ofis
- Ülke: Türkiye
Ayrıntılar
Tarihinde güncellendi Aralık 22, 2025 en 12:03 pm- Proje No HZNiğde
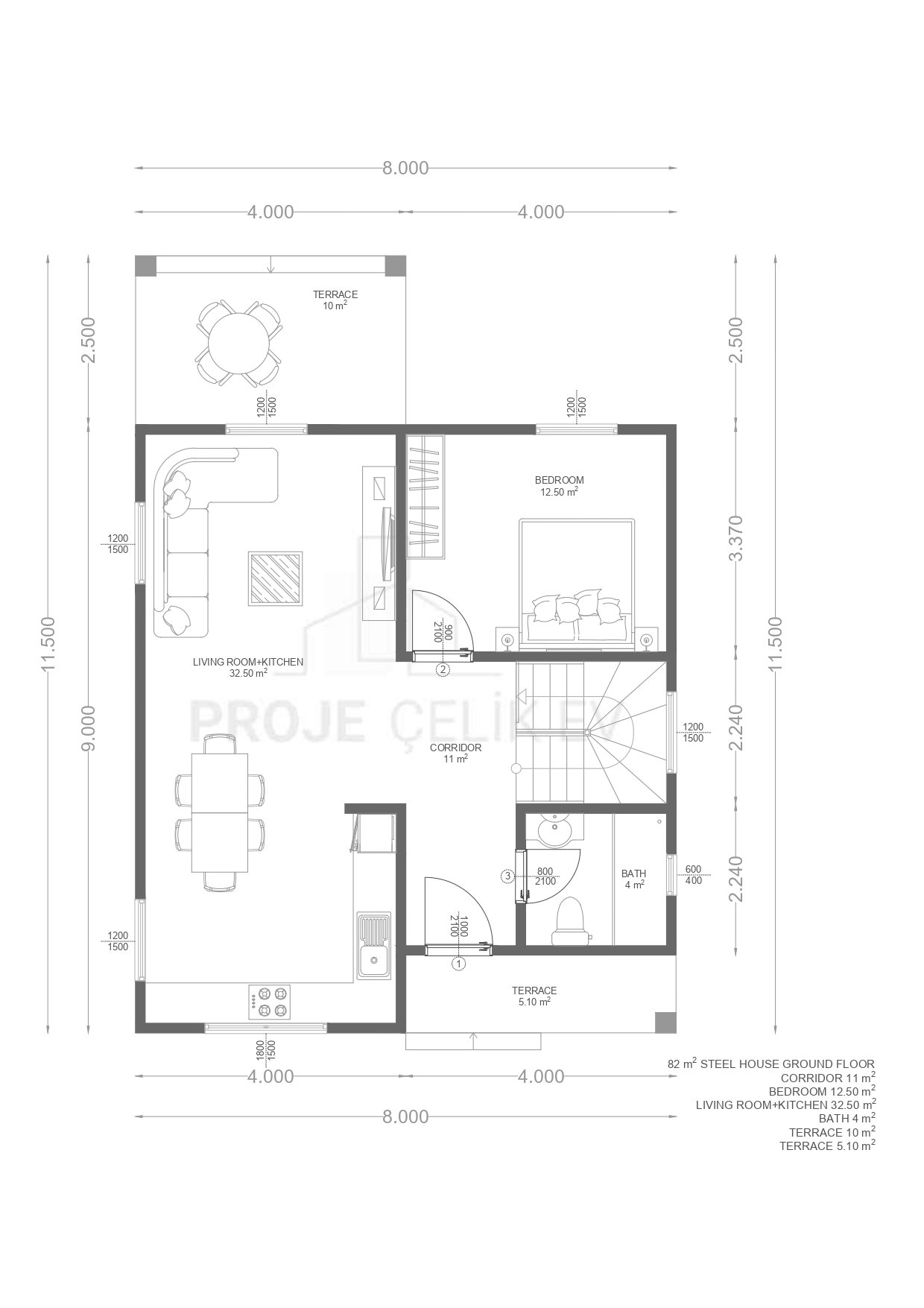
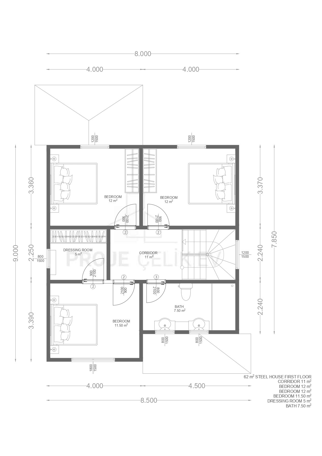
- Proje Özelliği 150 m2
- Toplam Arsa m2 Var
- Yatak Odası 4
- Oda 5
- Banyo 2
- Proje Tipi Dubleks, Çelik Yapı
- Proje Durumu Satılık
- Veranda Var mı? Yok
- Kat Sayısı 2
- Çamaşır Odası Yok
- Salon 2
Video
Enerji Tasarrufu
- Enerji Tasarrufu: A+
- | Energy class A+A+
- A
- B
- C
- D
- E
- F
- G
- H


